Мы используем куки-файлы. Соглашение об использовании
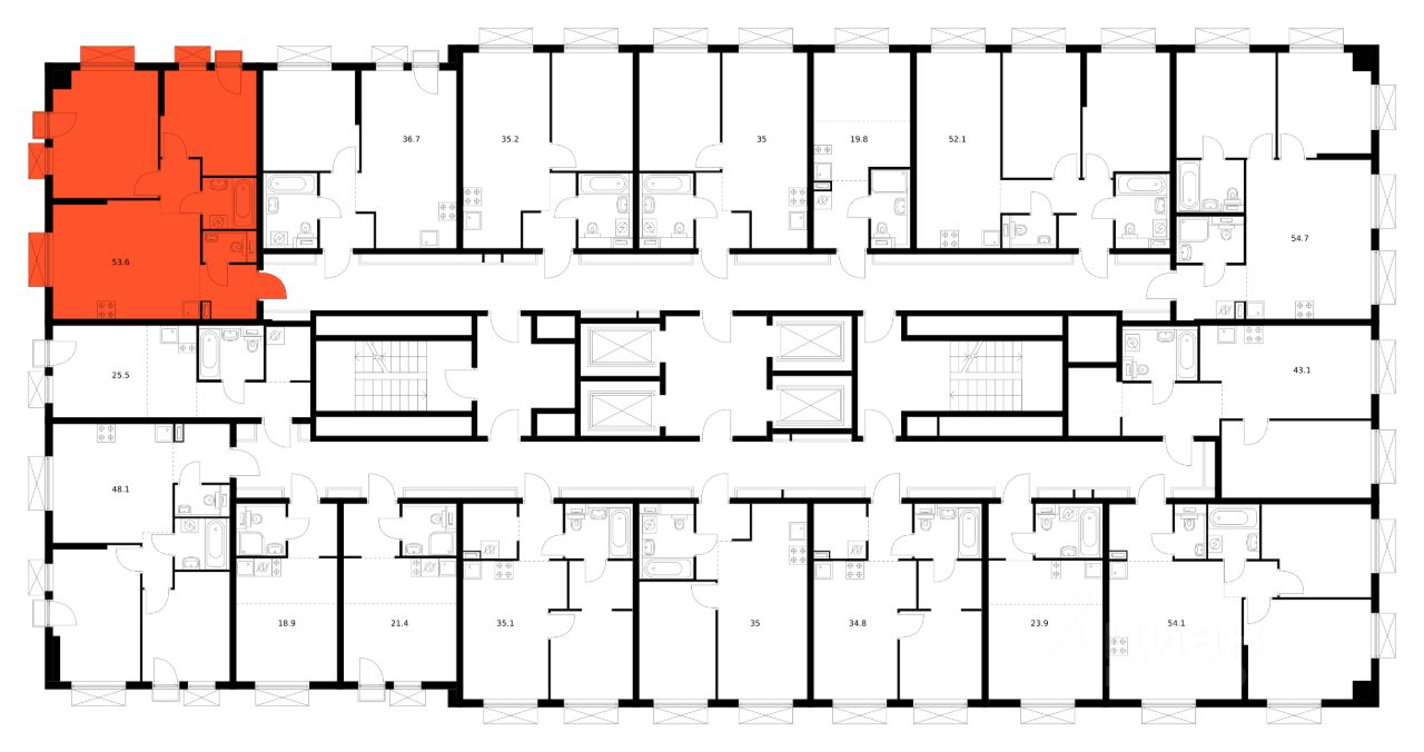
Общая площадь53,6 м²
Жилая площадь24,8 м²
Площадь кухни18,7 м²
Этаж17 из 25
Год сдачи2028
ДомНе сдан
ОтделкаЧистовая
Продаётся 2-комн. квартира площадью 53,6 кв.м на 17 этаже 25 этажного дома (Корпус 5-8, Секция 1) проекта ПИК Томилинский бульвар. Светлый просторный подъезд на уровне земли, функциональная планировка, большие окна, c отделкой. Жилой квартал "Томилинский бульвар" возводится рядом с Кузьминским парком в Котельниках. В 20 минутах пешком метро "Котельники", а на автомобиле 4 минуты до Новорязанского шоссе и 6 минут - до МКАД. В жилом квартале 11 корпусов. Высота домов - 25 этажей. В "Томилинском бульваре" будут три собственных детских сада, поликлиника, паркинги для жителей и гостей квартала, парки с Вайфай во дворе каждого дома - с местами для спокойного отдыха, спортивными и детскими площадками. На первых этажах откроются кафе, магазины и другие сервисы, важные для комфортной жизни. В районе, где строится "Томилинский бульвар", всё рядом: школы, детские сады, магазины, торговые центры - например, до "МЕГА Белая Дача" можно доехать за 15 минут. Ещё здесь много мест для прогулок и отдыха на природе, совсем рядом благоустроенный сквер "Патриот". В 13 минутах пешком находится парк "Кузьминки", а в 12 минутах на автомобиле - Люберецкие карьеры, где можно ловить рыбу, загорать и заниматься водными видами спорта в экстрим-парке. Артикул 578014 (Застройщик АО "Яркий мир")

О квартире

Тип жилья

Новостройка

Общая площадь

53,6 м²

Жилая площадь

24,8 м²

Площадь кухни

18,7 м²

Высота потолков

2,62 м

Санузел

1 раздельный

Балкон/лоджия

1 балкон

Вид из окон

На улицу и двор

Отделка

Чистовая

О доме

Количество лифтов

4 пассажирских, 8 грузовых

Тип дома

Монолитный

Парковка

Подземная

Пандус

Есть

Понравилась квартира — узнайте о ней больше

Застройщик ответит на все вопросы

Отделка квартиры

Чистовая: ремонт сделан, остаётся расставить мебель и заселиться

О ЖК «Томилинский бульвар»

  • Сдача комплекса
    Сдача в 2026—2028, есть сданные
  • Застройщик
    ПИК
  • Класс
    Комфорт
  • Тип дома
    Монолитный
  • Парковка
    Подземная, гостевая
  • Отделка
    Чистовая
  • Тип комплекса
    Жилой комплекс
Похоже на то, что вы ищете?

Особенности жилого комплекса

  • Отделка

  • Парковка

  • Внутренний двор

  • Входная группа

  • Лифт

Подробнее о жилом комплексе

Акции в ЖК «Томилинский бульвар»

Узнайте про персональные условия и дополнительные скидки при покупке квартиры у застройщика
logo

Квартиры с выгодой до 2,1 млн руб.

Ипотечный калькулятор
  • Базовая
  • Семейная
  • ИТ-ипотека
  • 20%
  • 30%
  • 40%
  • 50%
лет
  • 10 лет
  • 20 лет
  • 30 лет
Загружаем предложения от застройщика и банков
Корпус проверен наш.дом.рф
Обновлено 16 апреля 2026
  • Нет в реестре проблемных объектов
  • Застройщик не банкрот
  • Нет эскроу счета
  • Неактуальные фото стройки

Ещё квартиры в жилом комплексе

156 квартир в продаже · Сдача в 2026—2028, есть сданные
ЗастройщикПИК
Год основания: 1994
Строится: 289 домов в 60 ЖК
13 362 480 ₽
Цена за метр
249 300 ₽/м²
Условия сделки
долевое участие (214-ФЗ)