Мы используем куки-файлы. Соглашение об использовании
Проверено в Росреестре
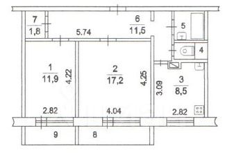
Общая площадь58,7 м²
Жилая площадь29,1 м²
Площадь кухни8,5 м²
Этаж3 из 12
Год постройки1995
Продаётся двухкомнатная квартира для тех, кто хочет создать интерьер под себя! Изолированные комнаты, две светлые застеклённые лоджии, удобная гардеробная и раздельный санузел. Квартира расположена на комфортном 3-м этаже, без перепланировок. Дом находится всего в 10 минутах пешком от метро Котельники. Рядом всё необходимое для жизни: магазины, школы, детские сады, зоны для прогулок и отдыха. Документы полностью готовы. Полная стоимость в договоре. Свободная продажа и быстрый выход на сделку! Один взрослый собственник. Никто не прописан. Без обременений.
Позвоните автору
Вам ответят на все вопросы

О квартире

Тип жилья

Вторичка

Общая площадь

58,7 м²

Жилая площадь

29,1 м²

Площадь кухни

8,5 м²

Санузел

1 раздельный

Балкон/лоджия

2 лоджии

Ремонт

Без ремонта

О доме

Год постройки

1995

Строительная серия

П-46

Количество лифтов

2 пассажирских

Тип дома

Панельный

Тип перекрытий

Железобетонные

Подъезды

5

О подъезде

Есть мусоропровод

Парковка

Наземная

Отопление

Центральное

Аварийность

Нет

Спросите умного помощника
Получите экспертное мнение о жилье
Информация из Росреестра
Обременения
Нет
Площадь
54,8 м²
Этаж
3
Собственников
1
Кадастровый номер
50:22:0050102:***

Расположение

Ипотечный калькулятор
  • Базовая
  • Семейная
  • ІТ-ипотека
  • 20.1%
  • 30%
  • 40%
  • 50%
лет
  • 10 лет
  • 20 лет
  • 30 лет
Загружаем предложения от застройщика и банков
Зимой будет очень тепло
Дома такой же серии обычно очень хорошо сохраняют тепло
9
10 100 000 ₽
Эксперт от ЦианаПомощь с поиском и сделкой
Цена за метр
172 061 ₽/м²
Условия сделки
свободная продажа
Ипотека
возможна
Агентство недвижимости
Суперагент