Первичная продажа
С отделкой
дом сдан
Котельники
10 минут на транспорте
10 883 600 ₽
322 000 ₽/м²
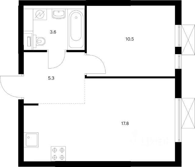
Продаётся 1-комн. квартира площадью 33,8 кв.м на 6 этаже 15 этажного дома (Корпус 7.1, Секция 2) проекта ПИК Белая Дача парк. Светлый просторный подъезд на уровне земли, функциональная планировка, большие окна, с отделкой.
"Белая Дача парк" — новый проект в Московской области, в городе Котельники. Квартал расположен в 2 километрах от МКАД и в 7 минутах на автомобиле от метро "Котельники". Уже сейчас вы можете приобрести квартиры с отделкой в готовых и строящихся корпусах.
На территории квартала будут построены 22 дома, две школы, поликлиники и пять детских садов. Один из центральных элементов проекта — широкий пешеходный бульвар, где мы создали пространства для спорта, прогулок и отдыха. Яркой точкой притяжения стал ПлейХаб "Ферма" — масштабная игровая зона с домом-мельницей, искусственным ручьём и развивающими элементами для детей. В 2024 году ПлейХаб стал победителем "Всероссийской премии лучших проектов создания игровой среды" и получил награду "Лучшая реализация игровой площадки среди девелоперских проектов".
Рядом с кварталом много магазинов и развлекательных центров: "МЕГА Белая дача" и гипермаркет "Глобус". До Люберецких карьеров можно добраться на машине за 9 минут, а до парка "Кузьминки" — за полчаса. Артикуль 653965 (АО "СЗ "Новый Горизонт") 1-комнатная квартира в ипотеку в новостройке в Котельниках.



















































































